Willkommen das Haus Appartements Fotos Grundrisse Lage Preise Bildergalerie Kontakt Anfahrt Impressum Seestrasse 7
Appartementhaus Hüning

für 1-2 Personen (ca.45m²)

App. 1.8                                       Typ 2   Typ 3.2    Typ 3.3 Erdgeschoss                                 1. & 2. Obergeschoss   3. Obergeschoss    3. Obergeschoss

für 3-4 Personen (ca.65m²)

im ersten und zweiten Obergeschoss im dritten Obergeschoss im dritten Obergeschoss

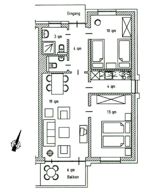
Grundrisse

Erkunden Sie Ihre Urlaubswohnung

Alle unsere Appartements sind vom Schnitt her ähnlich. Gerne möchten wir unseren Gästen aber den Service bieten sich Ihr ganz persönliches Appartement noch einmal genau anzusehen. Deshalb haben wir hier alle unsere Appartement- Grundrisse für Sie zusammengestellt. Durch Anklicken vergrößern Sie den jeweiligen Grundriss.
im Erdgeschoss
Erdgeschoss        1. & 2. Obergeschoss      1. & 2. Obergeschoss       1. & 2. Obergeschoss        3. Obergeschoss             3. Obergeschoss
App. 1.9        Typ 1      Typ 3     Typ 4     App. 3.1            App. 3.4
© Dipl.-Ing. Lothar Hüning - Vermietung -
im ersten und zweiten Obergeschoss im ersten und zweiten Obergeschoss im ersten und zweiten Obergeschoss im dritten Obergeschoss im dritten Obergeschoss Kontakt Preise Bilder im Erdgeschoss Grundrisse